ESTUDIO
CONTACTO
PUBLICACIONES
.
ESTUDIO
CONTACTO
PUBLICACIONES
.

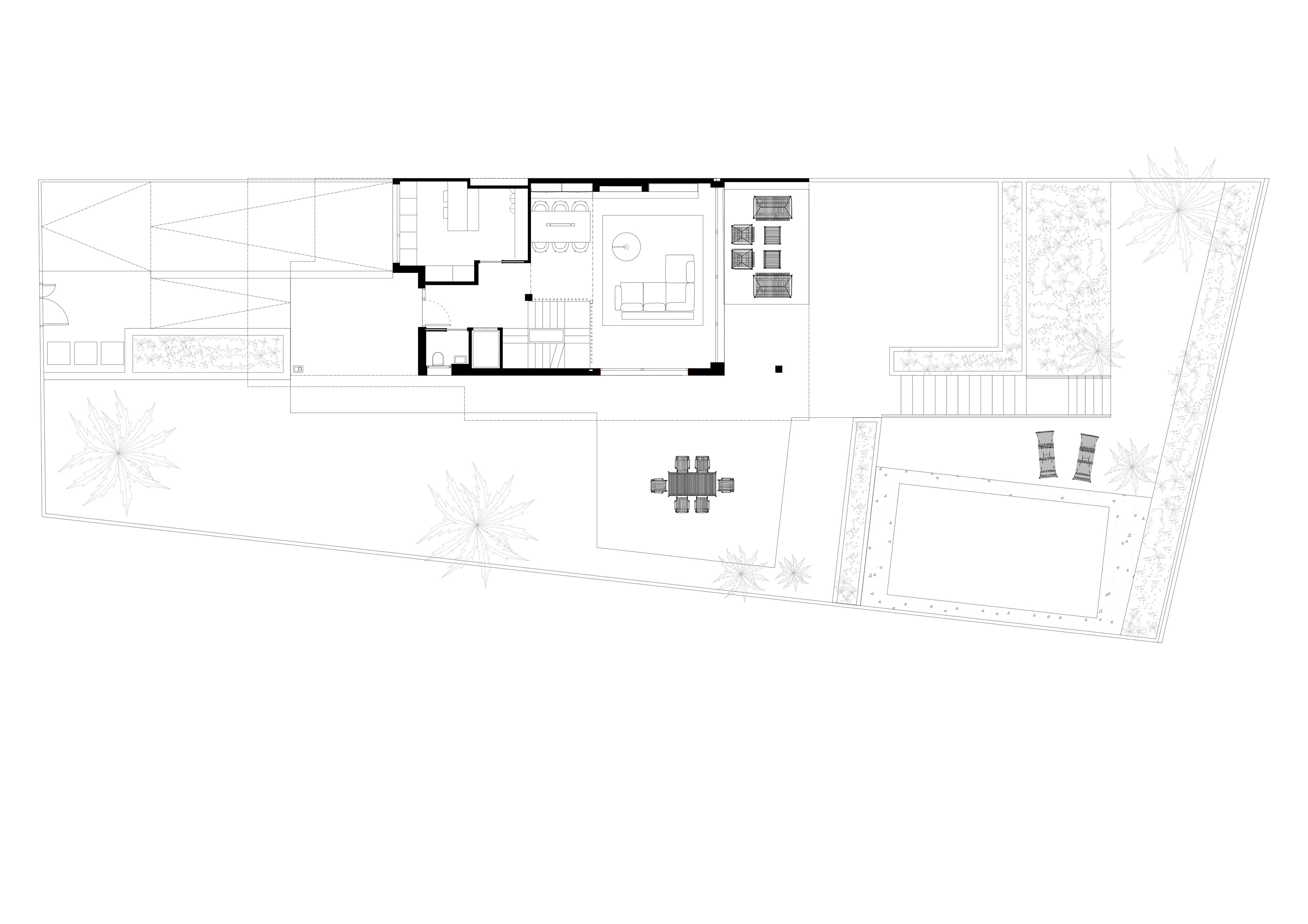
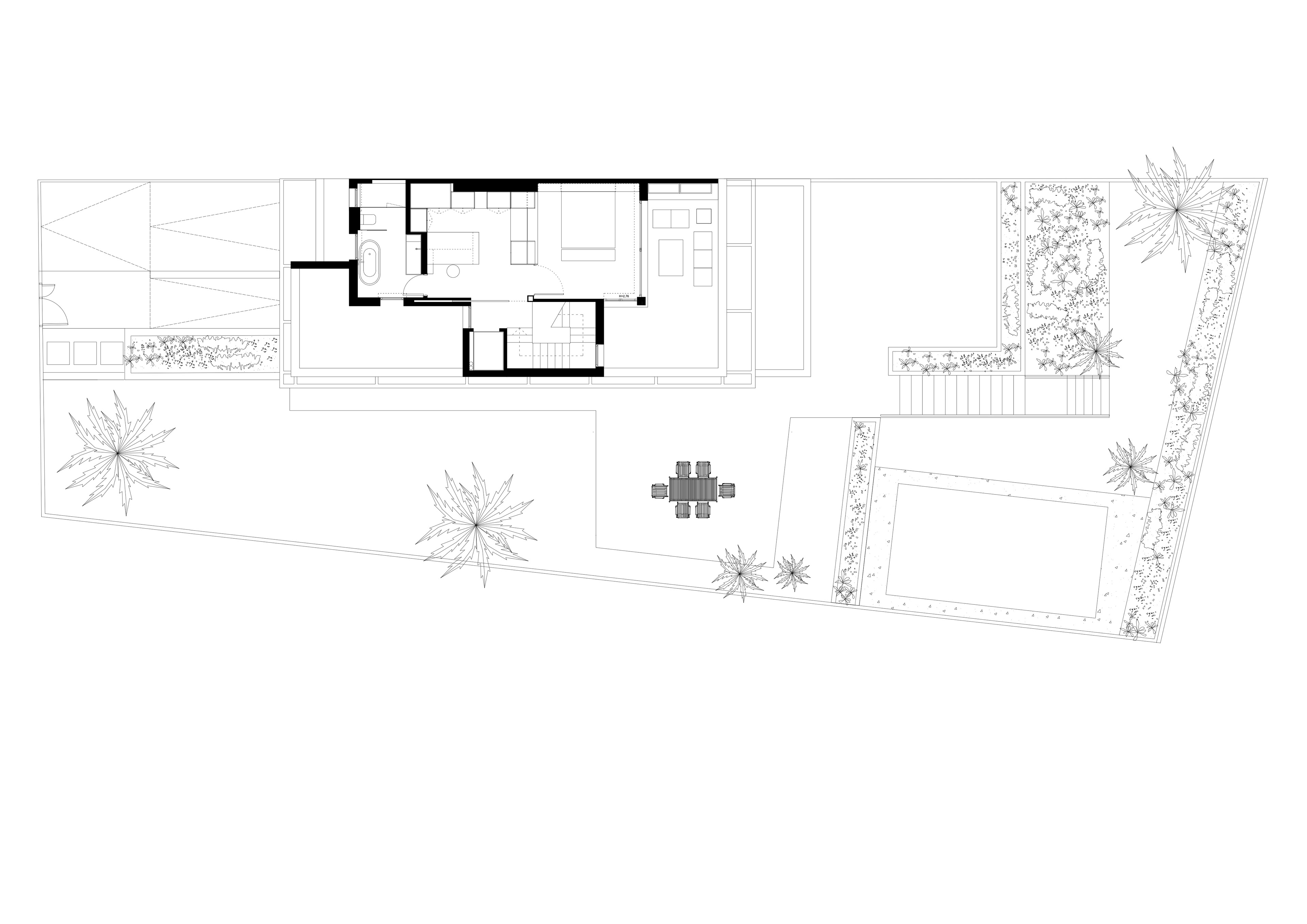
Reforma de Vivienda Aravaca

REFORMA - USO RESIDENCIAL
- EN PROYECTO -

Obra: Reforma de una vivienda pareada en Aravaca Ubicación: Aravaca, Madrid Autores: Gerardo Macarrón y Silvia Méndez-Vigo Fecha del proyecto: Mayo 2022 Superficie construida: 470 m2