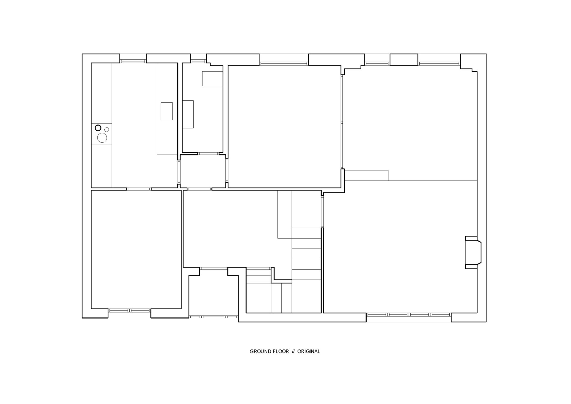
Situada en la periferia de Madrid, la vivienda se desarrolla en 4 plantas: bajo rasante, baja, primera y bajo cubierta y consta de dos jardines, uno delantero, por el que se accede a la vivienda, y otro trasero.
Aunque se pretende reformar toda la vivienda y los jardines, en la primera etapa se han acometido las obras concernientes a la planta baja y a la planta bajo cubierta.
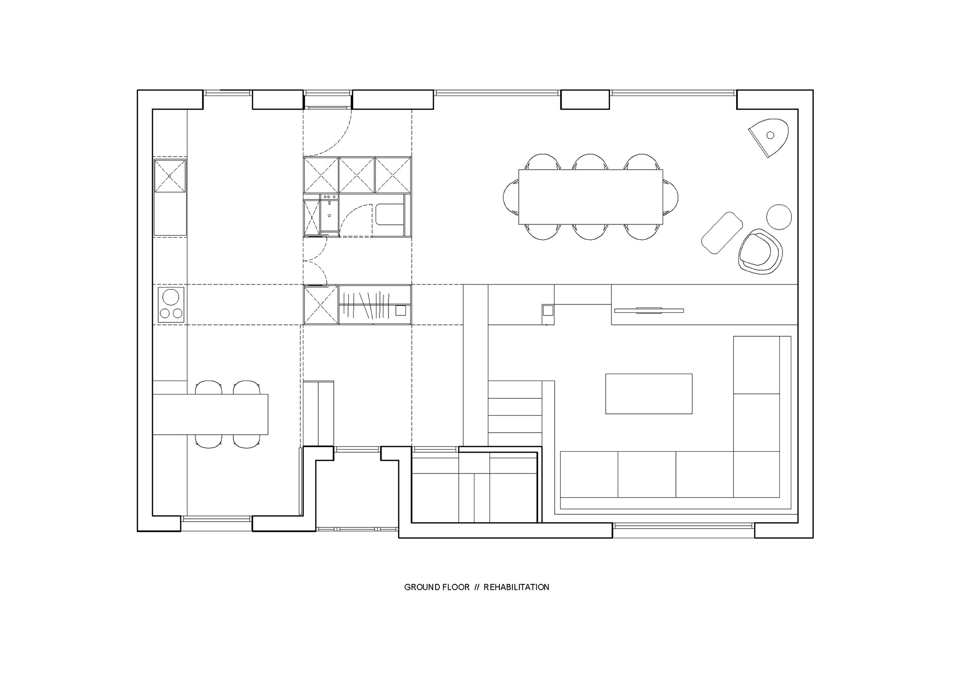
La planta baja se compone de acceso, salón, comedor, cocina, lavadero y aseo. Desde el primer momento el cliente transmitió lo importante que era para él la interconexión entre los distintos espacios, pero aún más importante que estos estuviesen perfectamente definidos y que incluso existiese la posibilidad de separar la cocina y el lavadero de estancias. También transmitió su preocupación por el desnivel entre el salón y el comedor, y por la dimensión más bien escasa de la zona de salón.
Tres volúmenes exentos son los que configuran un espacio fluido, pero definido y divisible según las necesidades.
Los dos primeros volúmenes, de suelo a techo, son el armario ropero y el aseo, albergando todos los muebles y electrodomésticos altos que necesita la cocina. Los volúmenes separan la cocina del comedor y del salón, y generan tres espacios intermedios, vestíbulo, acceso al aseo y lavadero.
El tercer volumen discurre horizontalmente entre el salón y el comedor. Puede utilizarse como banco y/o mueble para el televisor, y como barra mueble bar o mesa de apoyo desde el comedor. Este volumen bajo consigue ampliar la sensación espacial del salón y a su vez define perfectamente los espacios de salón y el comedor.
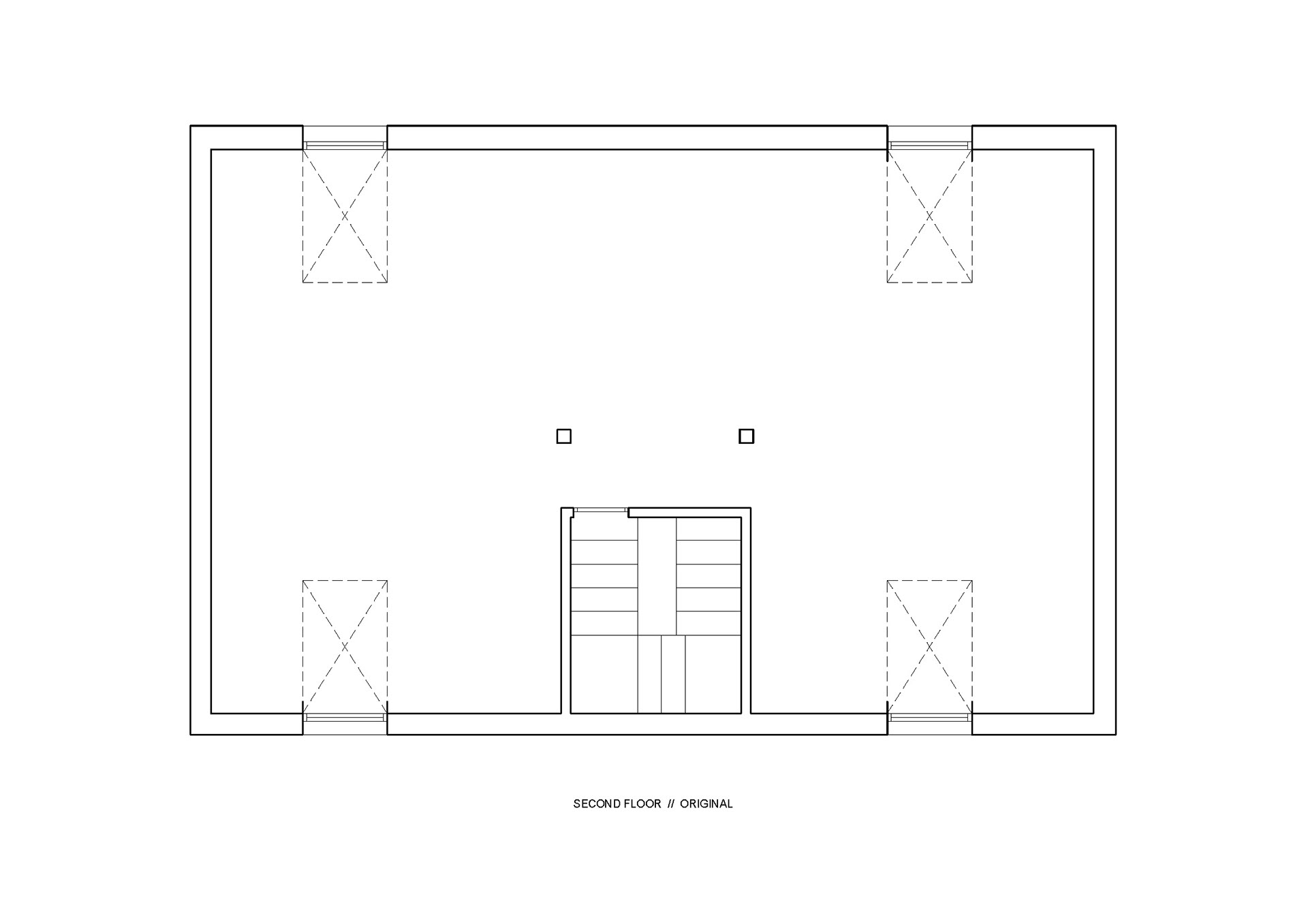
La planta bajo cubierta era un amplio espacio diáfano, con una caja que contenía las escaleras y con cuatro ventanas abuhardilladas, con el gran inconveniente de la poca altura libre a los dos lados de la estancia. 
Se decide desarrollar el dormitorio principal en esta última planta. Se incorpora la caja de escaleras para generar un único espacio, creando una conexión total entre dormitorio – vestidor y baño, y solamente la ducha y el inodoro se ocultan detrás de un vidrio translúcido. Los espacios abuhardillados donde la altura libre es mayor se aprovechan para generar una zona de lectura, un despacho, el vestidor y el baño, con ducha y wc aislados. Un solo mueble serpentea todo el espacio y consigue delimitar perfectamente las diferentes zonas de la habitación. Sirviendo a los espacios de mayor de altura, el mueble pasa por ser barandilla, cabecero y mesilla, estantería, mesa o librería, cómoda, sillón o armario, bañera, balda o encimera.