ESTUDIO
CONTACTO
PUBLICACIONES
.
ESTUDIO
CONTACTO
PUBLICACIONES
.

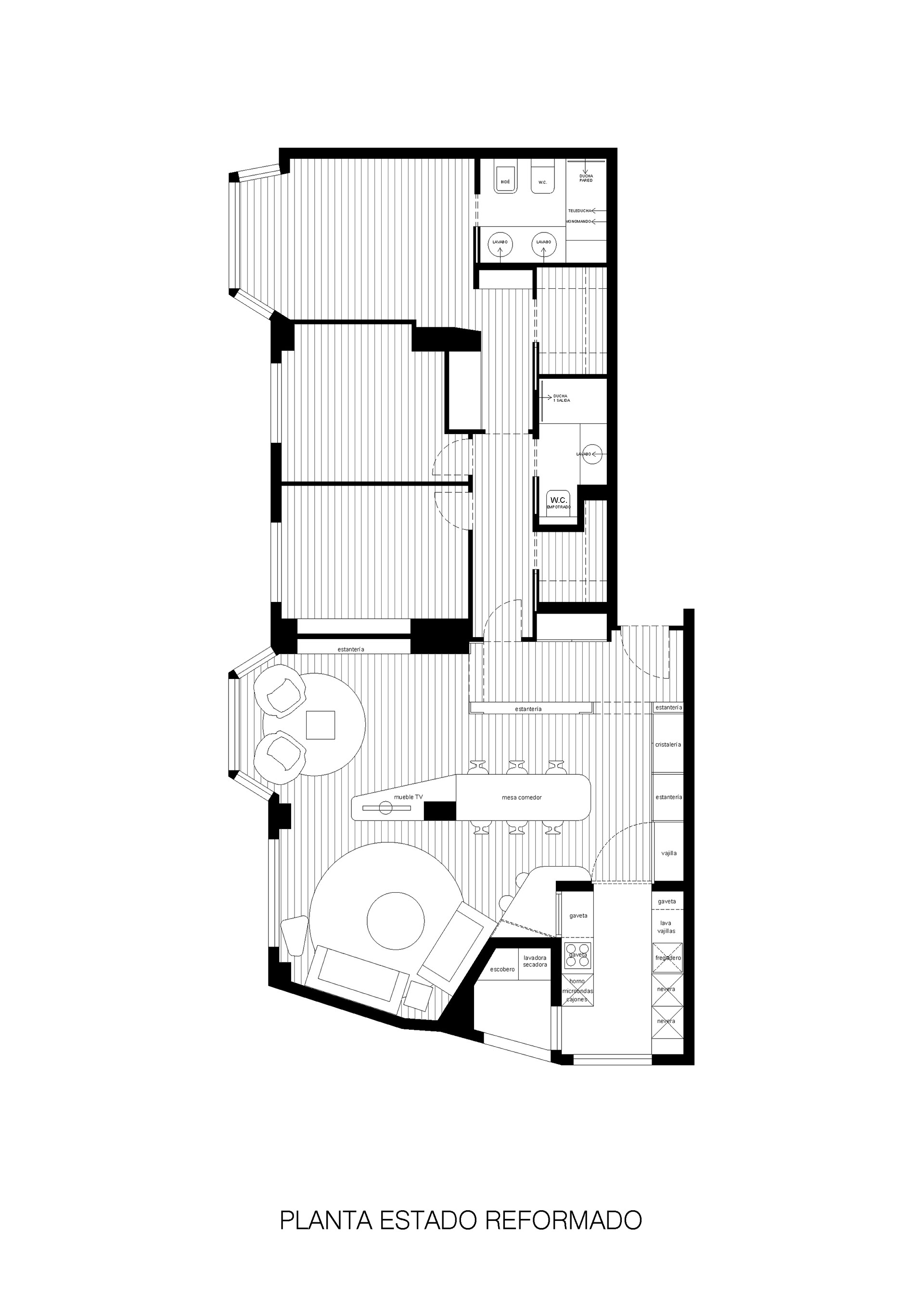
Reforma Vivienda en c/Bronce

REFORMA INTERIOR - USO RESIDENCIAL
MADRID 2015

Obra: Reforma vivienda en Madrid Ubicación: c/Bronce 33, Madrid Autores: Gerardo Macarrón y Silvia Méndez-Vigo Fecha del proyecto: Septiembre 2015 Superficie construida: 129 m2