ESTUDIO
CONTACTO
PUBLICACIONES
.
ESTUDIO
CONTACTO
PUBLICACIONES
.

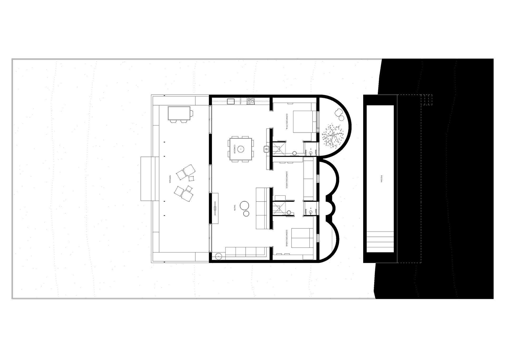
Vivienda unifamiliar en Cádiz

OBRA NUEVA - USO RESIDENCIAL
CADIZ 2018

Obra: Vivienda Unifamiliar en Cadiz Ubicación: San Lucar de Barrameda, Cadiz Autores: Gerardo Macarrón y Silvia Méndez-Vigo Colaboradores: Borja Ruiz de Velasco González Fecha del proyecto: Noviembre 2018 Superficie construida: 218 m2