ESTUDIO
CONTACTO
PUBLICACIONES
.
ESTUDIO
CONTACTO
PUBLICACIONES
.

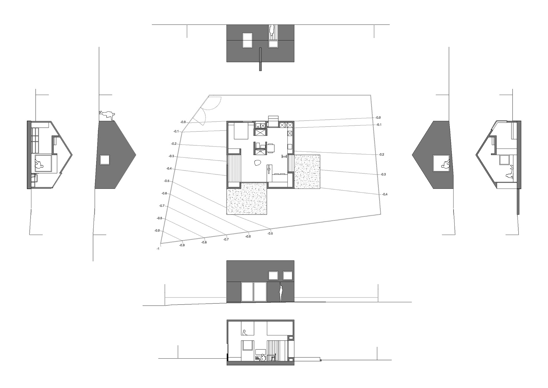
Vivienda Unifamiliar en Mierla

ONRA NUEVA - USO RESIDENCIAL
GUADALAJARA 2015

Obra: Cabaña en Mierla Ubicación: Mierla, Guadalajara Autores: Gerardo Macarrón y Silvia Méndez-Vigo Fecha del proyecto: Noviembre 2015 Superficie construida: 105 m2 en proyecto