


















Nos encontramos en un entorno hostil que obliga a desarrollar una arquitectura introvertida, cerrada y mirando hacia el interior. La parcela tiene forma de romboide y decidimos que la vivienda se adaptara a la geometría del solar, renunciando, por tanto, el ángulo recto. El propietario impuso otras dos premisas: una piscina interior y que la cocina ocupara un lugar preeminente, ya que es cocinero de profesión.
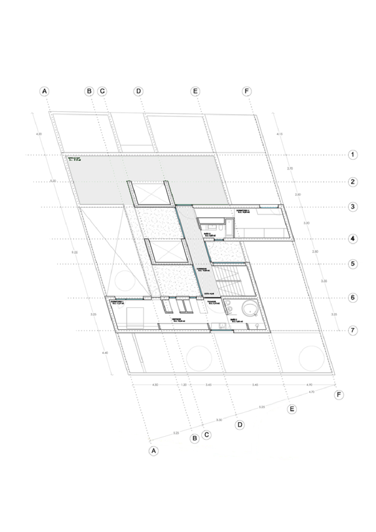
Planteamos la distribución de la vivienda en torno a la “alberca”: la piscina articula las estancias creando un vacío iluminado y ventilado a través de dos grandes lucernarios. El resto de la planta se fracciona en cuadrantes. En el cuadrante perpendicular a la piscina, en el extremo de la planta baja, situamos la cocina, cuyos fuegos quedan ubicados en el eje de la casa rematando la vista de la piscina según cruzamos el umbral. Las demás estancias son una sucesión de espacios cubiertos y descubiertos, generando así un volumen complejo en el que todas las habitaciones están comunicadas directamente con estancias exteriores.
Planteamos la distribución de la vivienda en torno a la “alberca”: la piscina articula las estancias creando un vacío iluminado y ventilado a través de dos grandes lucernarios. El resto de la planta se fracciona en cuadrantes. En el cuadrante perpendicular a la piscina, en el extremo de la planta baja, situamos la cocina, cuyos fuegos quedan ubicados en el eje de la casa rematando la vista de la piscina según cruzamos el umbral. Las demás estancias son una sucesión de espacios cubiertos y descubiertos, generando así un volumen complejo en el que todas las habitaciones están comunicadas directamente con estancias exteriores.